Table of Contents
Power Quality Analyzer
Requirements
- 3-phase voltage, current, frequency, measurement
- active, reactive, apparent power, power factor
- neutral current
- harmonics analysis up to 50th order
- quality - swell, dip, interruption, transient/over voltage, inrush current, unbalance rate
- real-time operation
- USB communication interface
AC sensors
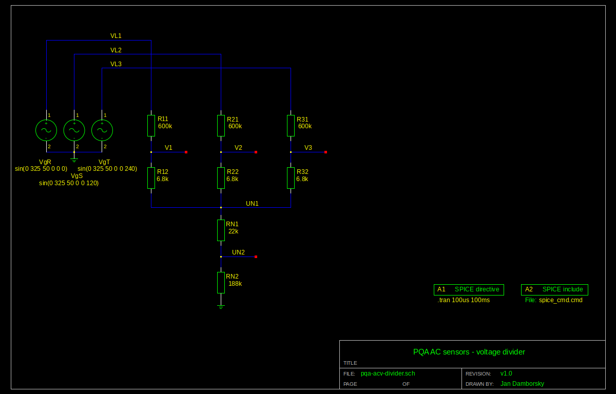
AC voltage sensors
For three-phase balanced system, the sum of instantaneous values of phase voltages (as well as currents) is zero: $$v_{L1} + v_{L2} + v_{L3} = i_{L1} + i_{L2} + i_{L3} = 0$$ In such case also $$u_{N1} = u_{N2} = 0$$ and $$v_1 = v_{L1}\frac{R_{12}}{R_{11} + R_{12}}$$
SPICE simulation
Voltage divider for measuring phase voltages - SPICE simulation schema
Normal grid conditions
Phase VL3 disconnected
VL2 & VL3 phases disconnected (only VL1 connected)
Power supply
| Component | Max. consumption [mA] | # | Total consumption [mA] |
|---|---|---|---|
| ACS712 | 13 | 4 | 52 |
| TL064 (TL084) | 1 (12) | 2 | 2 (24) |
| 78xx/79xx | 6 | 3 | 18 |
| Total | 72 (94) |





